FSAE Diffuser Design

Ravens Racing

CFD BOI For Half Body Simulation

Diffuser Pressure Plot To Define Center Of Pressure (COP)

Velocity Magnitude Plot To Prove Bernoulli’s Theorem

Diffuser Mesh

Diffuser With Car CSM

Design

The diffuser is a critical component on an FSAE racing car. It allows for the production of downforce which with the help of Bernoulli’s principle is able to keep the car stuck to the ground while cornering, resulting in faster speed out of the corners apex and enhanced grip. The goal for my capstone was to design, simulate, validate, manufacture and test a diffuser for our racing car. The design was based on multiple previous iterations as it was already proven with CFD that the levels of downforce produced by the component were significant enough to continue with manufacturing. in order to further demonstrate the designs efficiency pressure plots and speed plots were created in my design phase to improve upon validity.

CFD simulations were performed in Ansys fluent 2024 and iterated over 100 times. iteration numbers are low to ensure multiple simulations could take place over the span of time that one heavy simulation would be completed. The final diffuser design can be observed in the drawing provided below.

Final Design Manufacturing

The diffuser would feature a composites make up. A carbon-foam-carbon sandwich method would have taken place if the situation had gone as planned, however due to issues with the foam core sponsor, resorting to a aluminum sheet metal diffuser was the next best option. The sheet metal components would be manufactured in two pieces, the side spats and the top surface. Then they would be assembled and cut to size by me and handful of drilling tools

Sheet Metal Top Surface

Sheet Metal Side Spats

Both Side Diffusers Parts Assembled, Filed & Taped To Prevent Sharp Surfaces

Mounting Carbon Rod Aluminum Inserts

Bonded Carbon Rods & Inserts

CAD Print Out Stuck To Top Surface To Cut Diffuser To Shape

Final Assembly

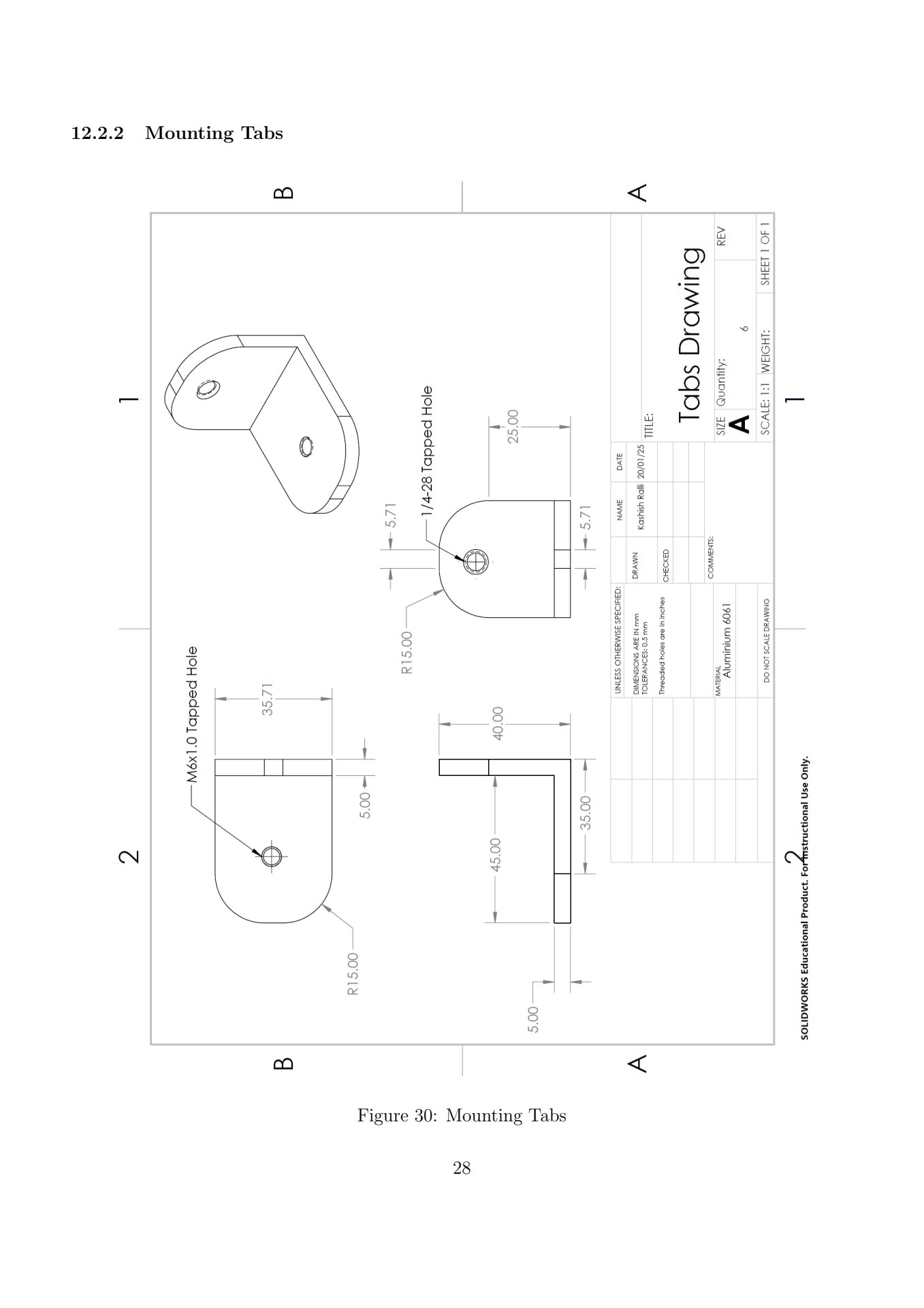
As can be seen from the image to the left, the diffuser was completed within a week of manufacturing. The 2 carbon rods would help mount the outer edges of the diffuser and a small tab on the inside would help hold the inner surface to prevent any scraping on the ground surface.

Final Report Page 1